image1 image2 image3 image4 image5 image7 image9 image10 image11 image12 image13
Villa

Villa in Santa Catalina-Son Espanyolet

1.650.000€

186 m2

N/A

3

3

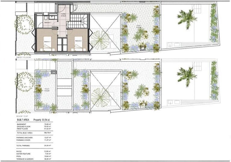
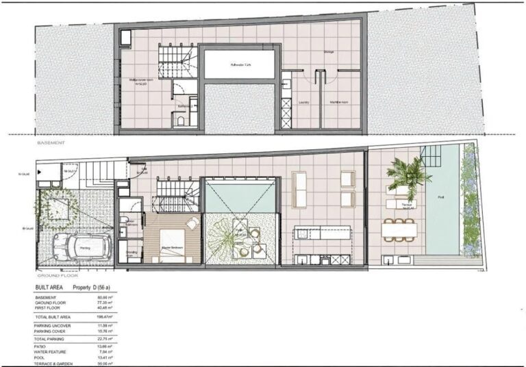
Located in the center of Palma, in the Son Espanyolet area, which has already become an extension of the popular Santa Catalina neighborhood and a short distance from the beautiful historic center and the main shopping streets of the city, the construction of four exclusive semi-detached houses is being carried out under a contemporary design of connected spaces where light circulates freely and the high qualities of the materials used, natural and warm, create elegant and comfortable atmospheres where you can breathe tranquility when you get home. The houses are developed on three levels with an area of 186 m2 and exteriors with terraces, swimming pool, garden and patio that are a real outdoor luxury where you can relax and enjoy the tranquility when you get home and the magnificent climate of the island. They have three bedrooms with fitted wardrobes, neutral colors and natural materials that create serene environments and three full bathrooms. The spacious living room with dining area and perfectly integrated and equipped kitchen is a large modern and elegant piece that extends to the exterior terraces creating more feeling of spaciousness and letting natural light flood every corner of the room. Moderna It should be noted that each house includes a parking space for absolute comfort. -Completion date: second semester 2026 FEATURES: -Air conditioning hot/cold, central heating, aluminum/climalit, natural stone and wood. -Open equipped kitchen -Private terrace, patio, garden, swimming pool and garage. LOCATION: -Downtown area, next to restaurants, next to shops, next to schools, five minutes from the Promenade, five minutes from the historic center.

Book a View

SERVICES & FEATURES

INSIDE

OUTSIDE

GENERAL

ENERGY CERTIFICATE

APPROXIMATE LOCATION