Villa
Villa in Bendinat-Cas Catala-Illetes
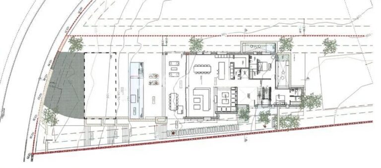
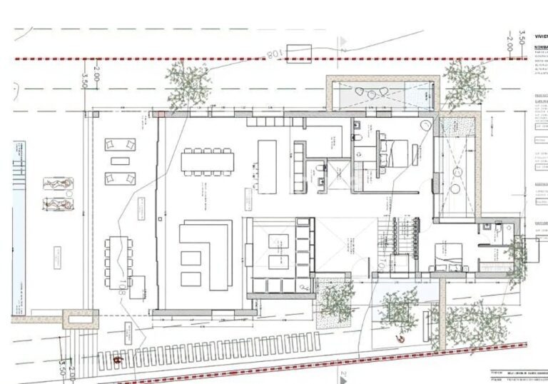
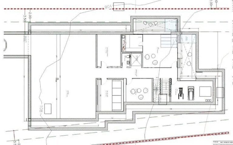
Magnífico solar en venta con una excelente orientación sur y espléndidas vistas al mar en la privilegiada zona residencial de Bendinat, exclusivo enclave de la costa suroeste de la isla muy próximo a Palma con espectaculares villas y un campo de golf de primer nivel. La superficie del solar es de 1.720 m2 que miran al mar y dispone de permiso de construcción en vigor y la posibilidad de llevar a cabo un proyecto de vivienda ya trazado. EL proyecto consta de una gran villa de innovadora arquitectura contemporánea con unas excelentes vistas al Mediterráneo y a la zona verde del castillo de Bellver. La casa dispondrá de 600 m2 y estará compuesta por 6 dormitorios, 8 baños, varios ambientes de salón, comedor y cocina integrada en un espacio de techos altos que se prolonga en unos exteriores igual de vanguardistas de terrazas, piscina infinita y jardín donde disfrutar de toda la calma que esta parte de la isla nos regala. La villa contará además con spa, sala de cine y garaje para varios coches. Inmejorable oportunidad de inversión para llevar a cabo un proyecto único en una ubicación privilegiada