image1 image3 image4 image10 image11 image13 image14 image15
PentHouse

PentHouse in Paseo Marítimo-El Terreno

2.249.500€

160 m2

N/A

3

3

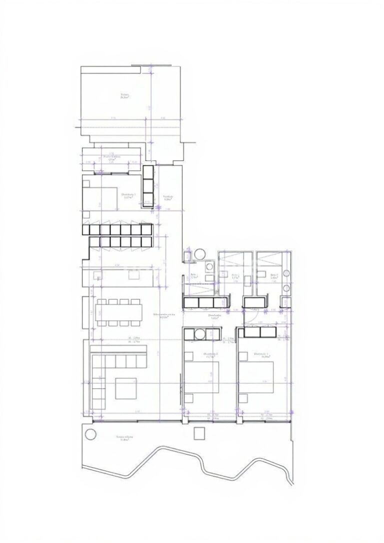
The privileged location of this spectacular completely renovated apartment on the first line of Can Barbará, a small dock in the bay of Palma that communicates with the open sea, gives us fantastic views of this entire part of Palma’s Promenade with the sea full of yachts and restaurants with seafront terraces. This exclusive apartment offers us 160 m2 newly renovated plus 57 m2 of fantastic terraces. A selection of the best qualities has been carried out in it such as excellent porcelain floors, wardrobes with lighting, motorized blinds, underfloor heating, all under a contemporary design of rooms full of light, warmth and beautiful panoramic sea views that are most impressive from its terrace. It has been developed into three bedrooms provided with fitted wardrobes and three bathrooms. Two of the bedrooms have access to the large terrace facing the sea and one of them has an en suite bathroom. A single and large space is destined to the spacious living room with dining room and open kitchen fully equipped with Miele appliances and equipped with wine bar, creating a whole a clear and perfectly lit area thanks to the large windows that from floor to ceiling let in all the natural light and allow us to go out to the fantastic terrace from where to contemplate the fabulous views of the sea and the port from this stretch of the Promenade. The house includes the furniture as well as a parking space for an absolute comfort of those who reside in it. FEATURES: -Air conditioning hot/cold by ducts, underfloor heating, fitted wardrobes with lighting, motorized blinds, double glazing, porcelain stoneware floors, water softener, osmosis system. -Miele equipped integrated kitchen, laundry, wine bar, crockery heating system. -Covered terrace, open terrace, garage LOCATION: -Sea views, next to restaurants, next to shops and shopping center, next to promenade, next to yacht club, close to beaches and all services.

Book a View

SERVICES & FEATURES

INSIDE

OUTSIDE

GENERAL

ENERGY CERTIFICATE

APPROXIMATE LOCATION