image1 image2 image3 image4 image5 image6 image7 image8 image10 image11 image12 image13 image14 image15 image16
Villa

Villa in Camp de Mar

1.760.000€

682 m2

1199 m2

N/A

N/A

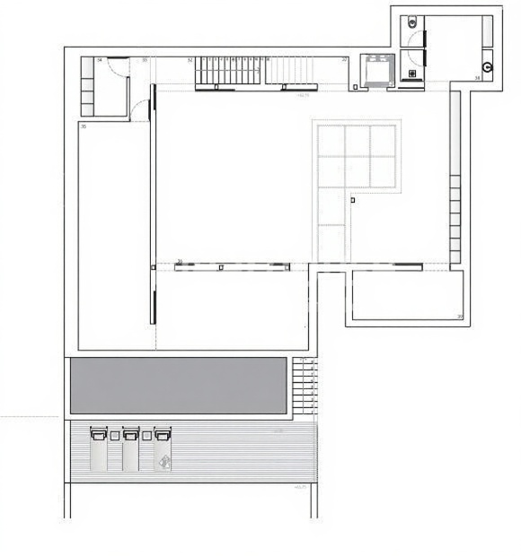
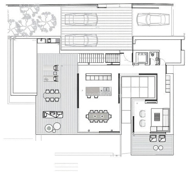
This fabulous 1,199 m2 plot is located in an unbeatable location in the exclusive area of Camp de Mar in the southwest of Mallorca, in the municipality of Andratx, with one of the most iconic beaches on the island a spectacular natural landscape. The plot offers us panoramic views of the sea and the green surroundings of impressive mountains and has already been granted a license to carry out the construction of a contemporary villa that will occupy 682 m2 within this beautiful environment. The excellent house will have exceptional qualities and materials, with an innovative design that incorporates Mediterranean elements so that the house is fully integrated into the landscape and offers us the best views. FEATURES: -Plot size: 1.199 m2 -Includes solar, project and license -Project area: 682 m2 LOCATION: -Sea views -Close to shops, close to restaurants, close to port, close to golf, 15 min. of Palma

Book a View

SERVICES & FEATURES

INSIDE

OUTSIDE

GENERAL

ENERGY CERTIFICATE

APPROXIMATE LOCATION